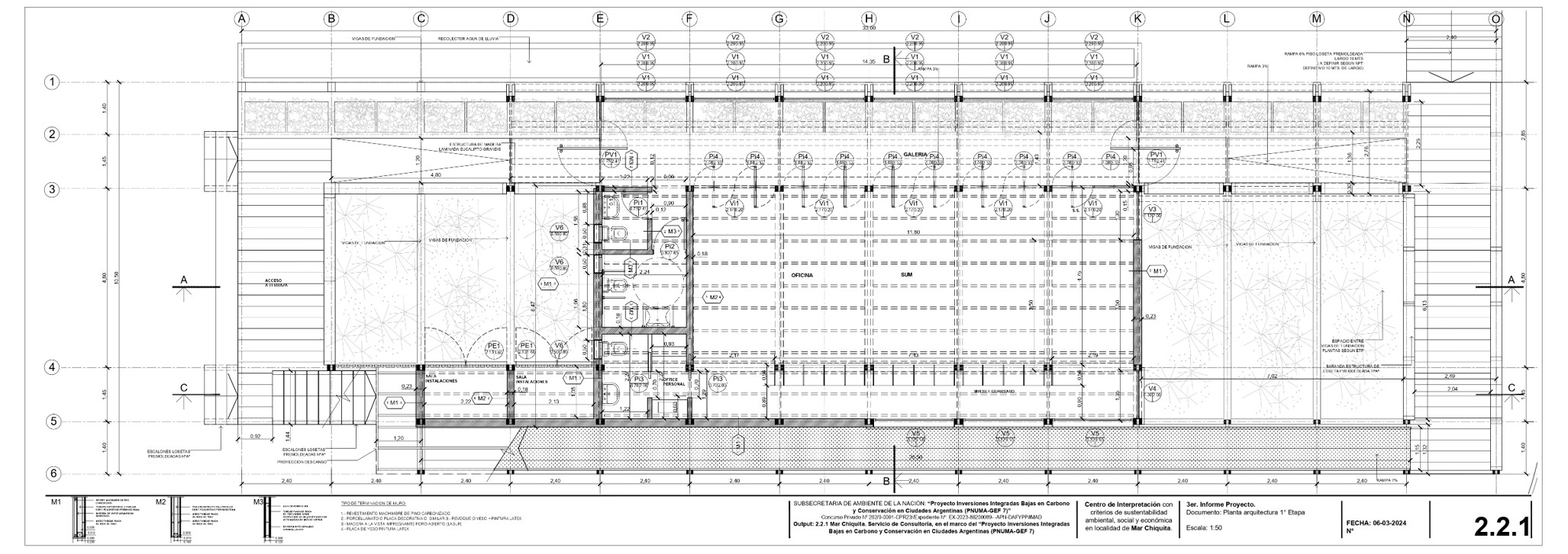
Centro de Interpretación con criterios de sustentabilidad ambiental, social y económica en localidad de Mar Chiquita

En asociación con: Andres Tapia Avalos, Maria José Diaz Varela, Alfonso Trueba, Kristina Atanasoska, Julián Verón.

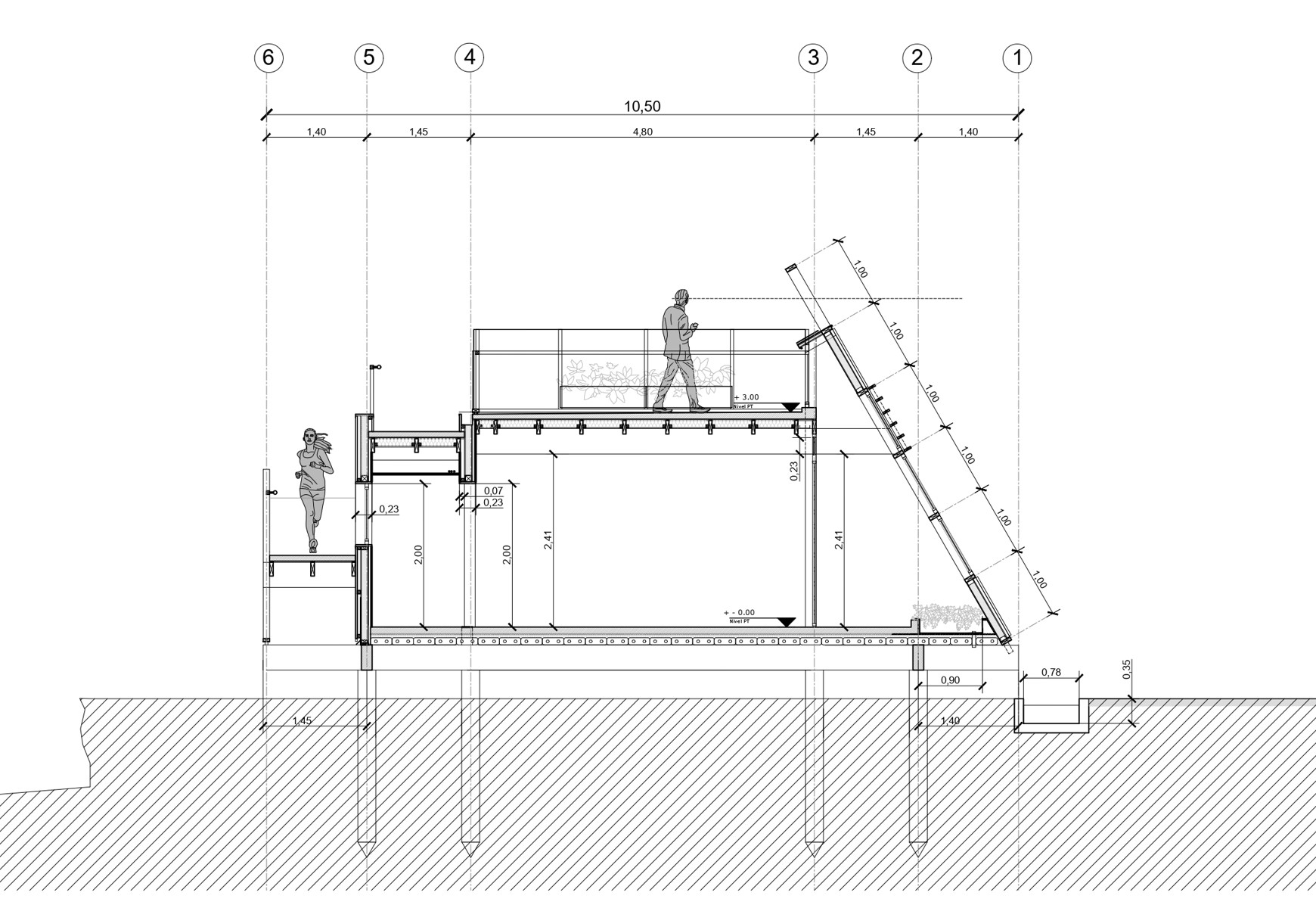
Proyecto ejecutivo y Pliego licitatorio (2023-2024). Estudio de Impacto Ambiental y Plan de Gestión Ambiental y Social del proyecto en conjunto con IHAM e IIMyC (2025), del “Centro de Interpretación con criterios de sustentabilidad ambiental, social y económica en localidad de Mar Chiquita, próxima a la Reserva Provincial de Biosfera Mar Chiquita en la Provincia de Buenos Aires”. Output: 2.2.1 Mar Chiquita. Servicio de Consultoría, en el marco del “Proyecto Inversiones Integradas Bajas en Carbono y Conservación en Ciudades Argentinas (PNUMA-GEF 7) Ex MINISTERIO DE AMBIENTE Y DESARROLLO SOSTENIBLE.